SSTC

ashdown, fawley

3 bedrooms | £350,000 | Freehold | SSTC

Call the Hythe office

023 8084 4131

Print
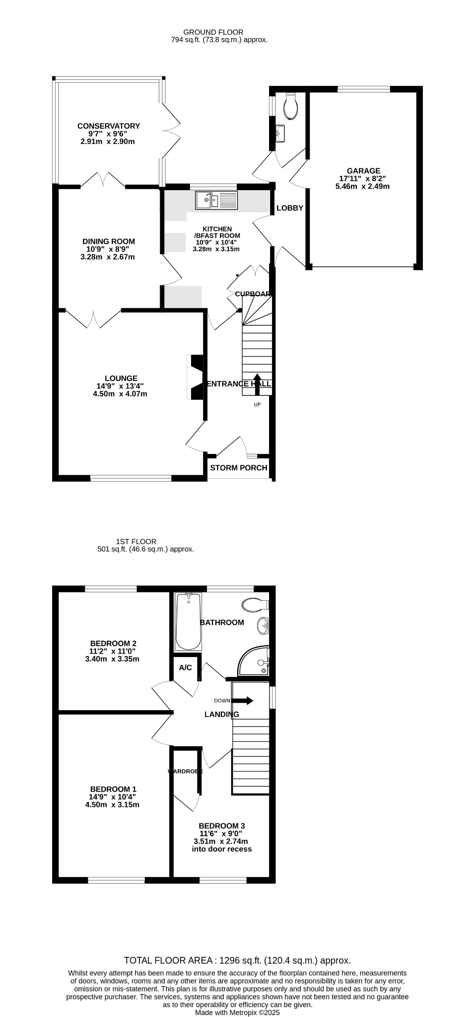
This spacious 3 bedroom detached house is offered with NO CHAIN and situated on the edge of Fawley Village. The property benefits from a conservatory, UPVC double glazing, gas central heating, enclosed rear garden, off-road parking and a garage. An internal viewing is highly recommended.

Double glazed door into:

ENTRANCE HALL
Stairs to first floor. Radiator.

LOUNGE
14' 9" (4.50m) x 13' 4" (4.06m)
Window to front. Fireplace with coal effect gas fire fitted. Television point. Radiator. Double doors into:

DINING ROOM
10' 9" (3.28m) x 8' 9" (2.
Read full description

Properties of interest

rose close, hythe

3 bedrooms | £385,000

bluebell gardens, hythe

3 bedrooms | £385,000

tates road, hythe

4 bedrooms | £375,000

Register with us, we’ll help make sure you don’t miss your dream home.

Save searches and properties, make notes, set up automatic email alerts for new properties.

Register Now

Dear Gina. Please accept my apologies for not getting this to you sooner, but I hope you'll understand that I've been a bit busy adapting to my new surroundings and settling in. We would like to thank Pearsons for all the very hard work the company has put in in marketing our property, dealing with enquiries, finding a good buyer and ultimately negotiating our sale to a successful conclusion. We have valued the unfailing courtesy, efficiency and friendliness of all with whom we have had contact, but our especial thanks should go to Lee and yourself for your professional and astute advice and constancy of approach. Whilst undoubtedly a large agency like Pearsons has many clients to deal with, we have always felt that we have been treated in an individual way which recognised the uniqueness of our Chilworth property. We would have no hesitation in recommending Pearsons as the agency of choice for properties in this area. Thank you again and please accept our very best wishes for the future.
Mr P

WHY CHOOSE PEARSONS?

Our Offices


View Office Map

Service | Marketing | Experience

Terms & Conditions | Privacy Policy | Client Money Protection Certificate | Click here for a full list of our lettings fees | Complaints Procedures | Site Map | Website by fruitful studio

©2026 Pearsons | Pearsons Southern Limited is registered in England and Wales. Registered office: Kintyre House, 70 High Street, Fareham, Hants PO16 7BB. Company No. 01517996